No description yet: Can you help?
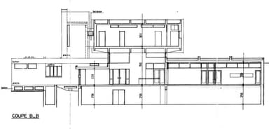
The building has a mixed use: Nursery and facilities on the ground floor, habitation on the first floor (2 initialy, 1 today). The construction exposes the different materials it is build from.